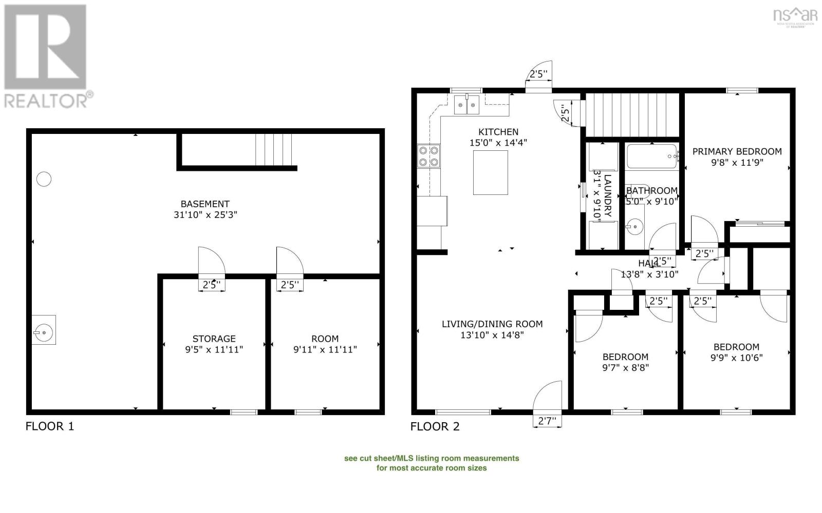
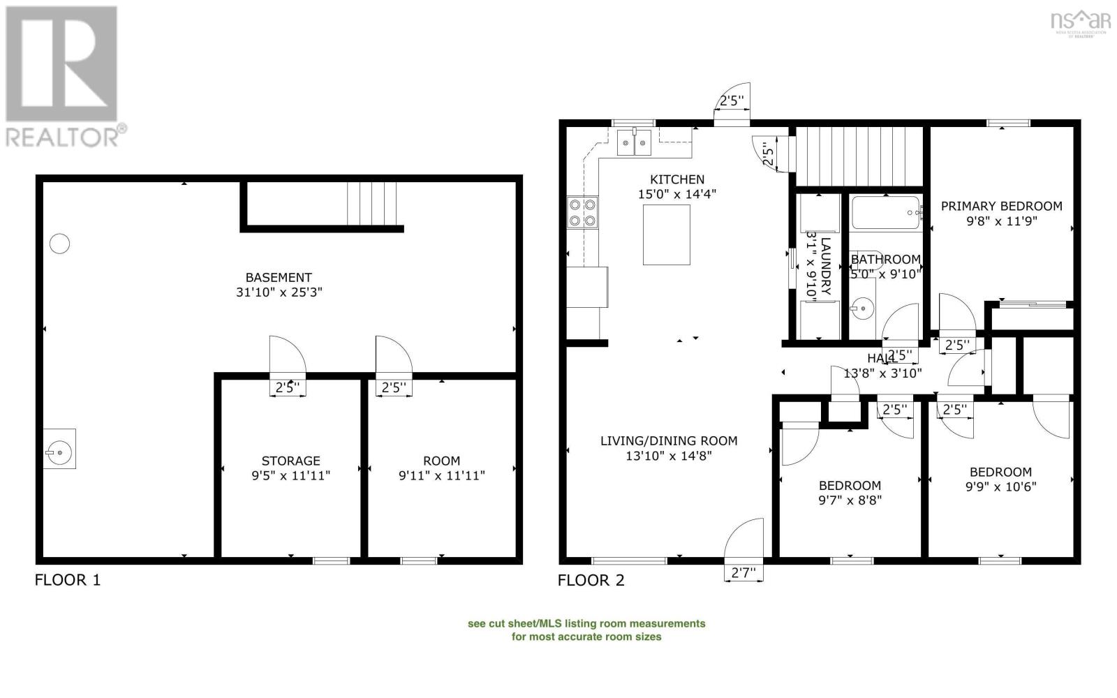
Experience the peace of mind that comes with a 2024 constructed home, combined with the family-oriented seaside neighbourhood of Eastern Passage. This fully detached three bedroom, one full bathroom bungalow is tucked away on a quiet, country-like lane; offering a semi-rural setting all while being close to amenities and Downtown Dartmouth. Newer construction on a mature lot is a rare find. The open-concept kitchen and living room area is kept comfortable year-round by an energy-efficient heat pump. Situated on a generous 6,900-square-foot lot, the property offers ample outdoor space via two side yards. The basement is already plumbed-in for a bathroom and framed for two additional rooms, providing a head start on nearly doubling your living space to over 2,200 square feet. Or leave it as is for storage and/or a large workshop. This property has plenty of room to build a garage or a backyard suite. C2 zoning is broad and allows for business use; a great option for self employed folks. Enjoy a lifestyle defined by nature and community, just minutes from the McCormacks Beach boardwalk, Rainbow Haven Beach and good schools. This location is also exceptionally convenient for military families, offering a quick commute to 12 Wing Shearwater and CFB Halifax. From the local charm of Fishermans Cove to the easy access to the city, this home offers the best of seaside living. Comes with a ten year Atlantic Home Warranty. (id:54304)
| MLS® Number | 202606200 |
| Property Type | Single Family |
| Community Name | Eastern Passage |
| Amenities Near By | Park, Playground, Public Transit |
| Features | Sump Pump |
| Bathroom Total | 1 |
| Bedrooms Above Ground | 3 |
| Bedrooms Total | 3 |
| Appliances | Stove, Dryer, Washer, Refrigerator |
| Architectural Style | Bungalow |
| Constructed Date | 2024 |
| Construction Style Attachment | Detached |
| Cooling Type | Heat Pump |
| Exterior Finish | Vinyl |
| Flooring Type | Laminate |
| Foundation Type | Poured Concrete |
| Stories Total | 1 |
| Size Interior | 1,132 Ft2 |
| Total Finished Area | 1132 Sqft |
| Type | House |
| Utility Water | Municipal Water |
| Acreage | No |
| Land Amenities | Park, Playground, Public Transit |
| Landscape Features | Partially Landscaped |
| Sewer | Municipal Sewage System |
| Size Irregular | 0.1584 |
| Size Total | 0.1584 Ac |
| Size Total Text | 0.1584 Ac |
| Level | Type | Length | Width | Dimensions |
|---|---|---|---|---|
| Main Level | Kitchen | 15.3 x 14.10 | ||
| Main Level | Living Room | 14.3 x 13.10 | ||
| Main Level | Primary Bedroom | 11.10 x 10.1 | ||
| Main Level | Bedroom | 10.2 x 8.3 | ||
| Main Level | Bedroom | 10.2 x 10.7 | ||
| Main Level | Bath (# Pieces 1-6) | 9.10 x 5.5 |
https://www.realtor.ca/real-estate/29549905/66-mckay-lane-eastern-passage-eastern-passage
Jessica Tasker
Your enquiry will go directly to the listing agent!